Portfolio
Progetti pubblici
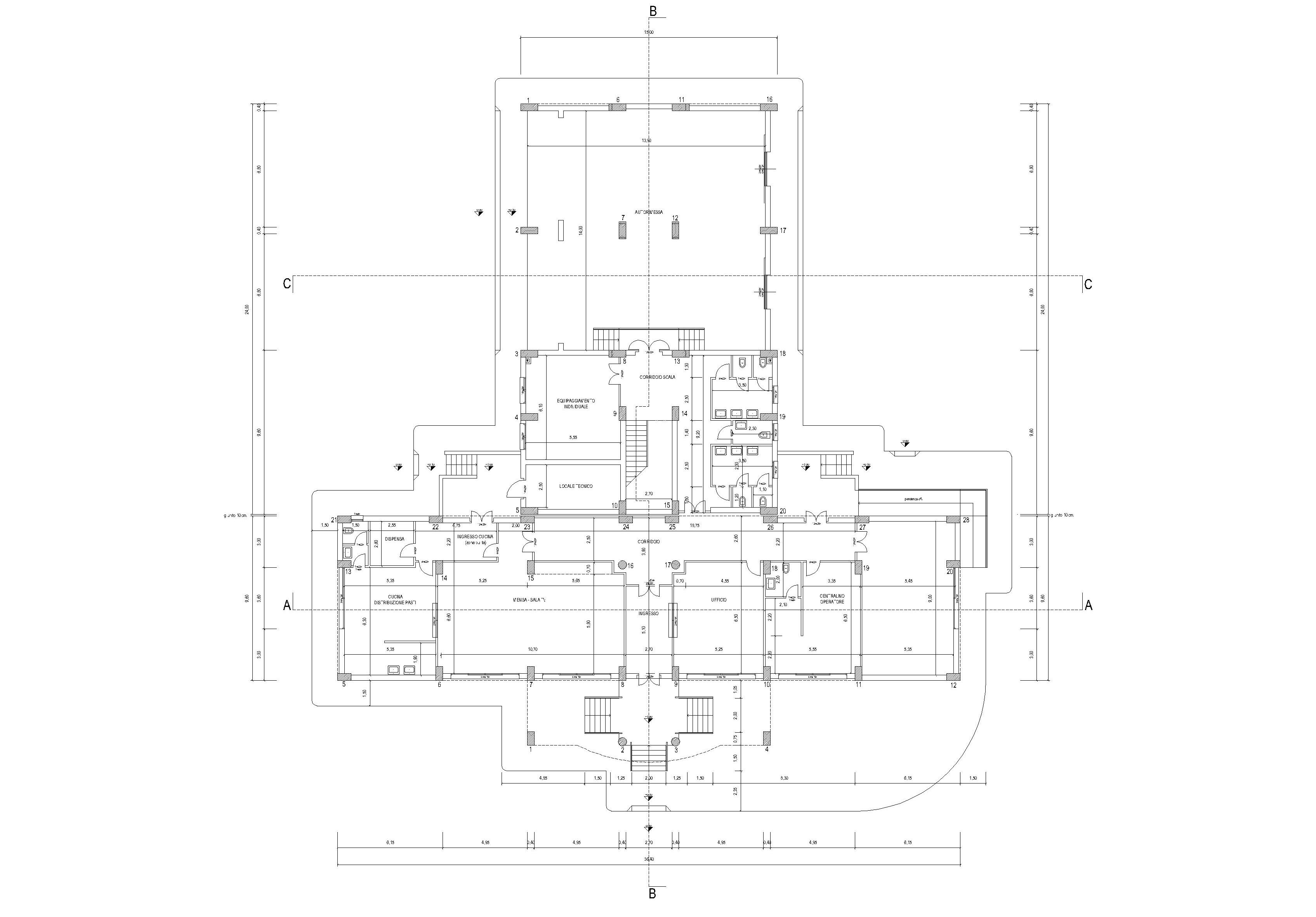
Caserma dei vigili del fuoco
2001 - 2007
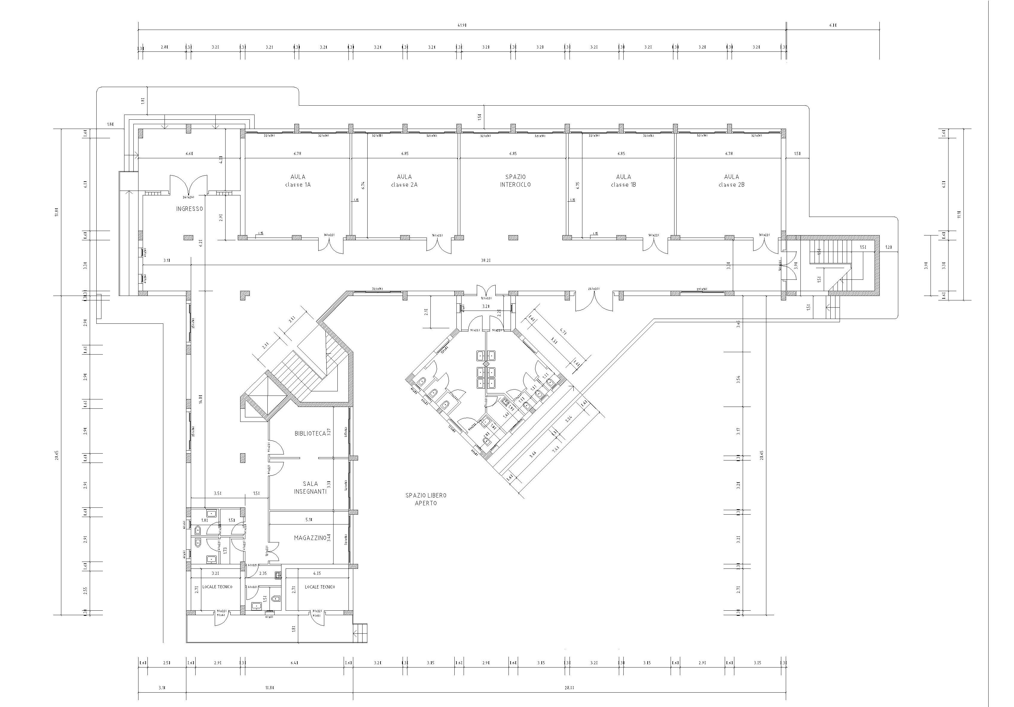
Scuola elementare 10 aule
1992 - 2001
Caserma carabinieri
1998 - 2000
Restauro Casa Canonica Chiesa di San Giacomo
1992 - 1994
Restauro della Chiesa di San Bartolomeo
1992 - 1994
Centro diurno per anziani
1989 - 1992
Restauro Istituto Madre Maria Schininà
1996 - 1998
Restauro Istituto Sacro Cuore
1996 - 1998
Ricostruzione Chiesa San Nicolò
1997 - 1999
Caserma Carabinieri
-
Cliente:
Ministero dell’Interno
-
Luogo:
Marina di Ragusa (RG)
-
Anno di completamento:
2000
-
Tipologia:
Commessa con finanziamento pubblico
-
Progetto e direzione dei lavori:
Giuseppe Vajana con Giampaolo Giardina
-
Stato:
Progetto realizzato
-
Budget:
Euro 878.330,03
-
Stazione dei Carabinieri:
La stazione dei Carabinieri di Marina di Ragusa ospita circa 20 militari dell’Arma.
E’ stata progettata nel rispetto delle direttive del Ministero dell’Interno e
si trova nella ridente frazione balneare di Ragusa.
Al suo interno spazi dedicati al ricovero mezzi e natanti, uffici,
mensa per il personale, alloggi per i militari e per il comandante e
vice-comandante di stazione.
RESTAURO DELLA CASA CANONICA DELLA CHIESA DI SAN GIACOMO
1992 - 1994
-
Cliente:
Curia Arcivescovile
-
Luogo:
Capizzi (ME)
-
Anno di completamento:
1994
-
Tipologia:
Commessa con finanziamento pubblico
-
Progetto e direzione dei lavori:
Giuseppe Vajana
-
Stato:
Progetto realizzato
-
Budget:
Euro 81.540,80
-
Casa Canonica Chiesa di San Giacomo:
Intervento di ristrutturazione e restauro di un edificio annesso alla imponente chiesa di
San Giacomo Apostolo Maggiore, conosciuto dal 1200 circa,
come uno dei più importanti santuari della Sicilia.
RESTAURO DELLA CHIESA DI SAN BARTOLOMEO
1992 - 1994
-
Cliente:
Curia Arcivescovile
-
Luogo:
Capizzi (ME)
-
Anno di completamento:
1994
-
Tipologia:
Commessa con finanziamento pubblico
-
Progetto e direzione dei lavori:
Giuseppe Vajana
-
Stato:
Progetto realizzato
-
Budget:
Euro 65.073,57
-
Restauro Chiesa di San Bartolomeo
Intervento di restauro di una piccola chiesa medievale con annessa casa canonica
Centro diurno per anziani
1989 - 1992
-
Cliente:
Comune di Santa Croce Camerina (RG)
-
Luogo:
Santa Croce Camerina (RG)
-
Anno di completamento:
1992
-
Tipologia:
Commessa con finanziamento pubblico
-
Progetto e direzione dei lavori:
Giuseppe Vajana
-
Stato:
Progetto realizzato
-
Budget:
Euro 301.444,88
-
Centro diurno per anziani:
Il Comune di Santa Croce Camerina, una ridente cittadina del ragusano, aveva l’esigenza di dotarsi di un centro di aggregazione per accogliere ed organizzare gli anziani del paese. Il progetto ha previsto la realizzazione di uno spazio polifunzionale con annessa piccola sala per proiezioni cinematografiche. Al suo interno bar, sala lettura, biblioteca e due camere indipendenti per accoglienza temporanea con ambulatorio medico.
Restauro Istituto Madre Maria Schininà
1996 - 1998
-
Cliente:
Curia arcivescovile di Siracusa
-
Luogo:
Siracusa
-
Anno di completamento:
1999
-
Tipologia:
Commessa con finanziamento pubblico
-
Progetto e direzione dei lavori:
Giuseppe Vajana
-
Stato:
Progetto realizzato
-
Budget:
Euro 378.110,96
-
Istituto Madre Maria Schininà (Sacro Cuore):
Il progetto interviene esternamente ed internamente ad un edificio conventuale e scolastico rifacimento totalmente i prospetti esterni e ristrutturando un edificio attiguo che ospita al piano terra un piccolo teatro ed al primo piano gli alloggi delle suore del Sacro Cuore.
Restauro Istituto Sacro Cuore
1996 - 1998
-
Cliente:
Curia arcivescovile di Siracusa
-
Luogo:
Siracusa
-
Anno di completamento:
1999
-
Tipologia:
Commessa con finanziamento pubblico
-
Progetto e direzione dei lavori:
Giuseppe Vajana
-
Stato:
Progetto realizzato
-
Budget:
Euro 150.404,13
-
Istituto Sacro Cuore di Brucoli:
Intervento di ristrutturazione interna di un edificio adibito a scuola primaria gestito dalle
suore del Sacro Cuore.
RICOSTRUZIONE E RESTAURO DELLA CHIESA DI SAN NICOLO'
1997 - 1999
-
Cliente:
Curia arcivescovile di Monreale
-
Luogo:
Prizzi (PA)
-
Anno di completamento:
1999
-
Tipologia:
Commessa con finanziamento pubblico
-
Progetto e direzione dei lavori:
Giuseppe Vajana
-
Stato:
Progetto realizzato
-
Budget:
Euro 275.331,16
-
Chiesa di San Nicolò:
Intervento di ristrutturazione e restauro conservativo di una piccola chiesa risalente
al XIII secolo da tempo abbandonata.
La ricostruzione è stata effettuata con tecniche tradizionali recuperando
parte del materiale crollato.